カテゴリー
グレイス相模大野
フェ、美容室、クリニックなど60店舗以上が立ち並ぶ
『銀座通り商店街』沿いの立地
3LDKフルリフォーム物件
オートロック・防犯カメラ有
駐車場専用使用権1台分有
- 販売価格
- 4,580万
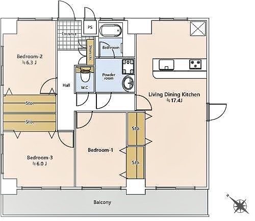
- 間取り
- 3LDK
- 階数
- 1階
- 築年月
- (1995年)7月
- 専有面積
- 81.68㎡
- 所在地
- 【物件概要】▪所在地:相模原市南区相模大野6-2-1 ▪用途地域:近隣商業地域 ▪構造 /階数:鉄筋コンクリート造陸屋根地下1階付5階建/1階部分 ▪築年月:平成7年 (1995年)7月 ▪土地権利:所有権 ▪総戸数:20戸(住居18戸・店舗2戸) ▪分譲会社: サウスクラウド㈲ ▪施工会社:南雲建設㈱ ▪管理会社:㈱東急コミュニティー ▪管理形態:全部委託管理(巡回) ▪管理費:月額14,000円 ▪修繕積立金:月額 30,050円 ▪駐車場使用料:月額15,000円 ▪ペット飼育:可(飼育細則有※大人が 抱きかかえられるもので、室内で飼育する犬又は猫1住戸につき1頭まで) ▪設備: エレベーター/オートロック/防犯カメラ ▪駐車場:空無(月額13,000~15,000円) ▪駐輪場:空有(月額20円) ▪バイク置場:無 ▪ライフライン:東京電力/都市ガス /公営水道/公共下水 ▪現況:空室 ▪引渡:相談 ※バルコニー面積:不明
- 交通
- 小田急小田原線 相模大野 11分
- 部屋向き
- 南西
- 構造
- 鉄筋コンクリート造陸屋根地下1階付5階建/1階








